Kurjala maalaiskylpylä

Korjaus- ja muutossuunnitelma, Leppävirta 2024

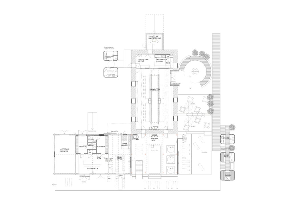
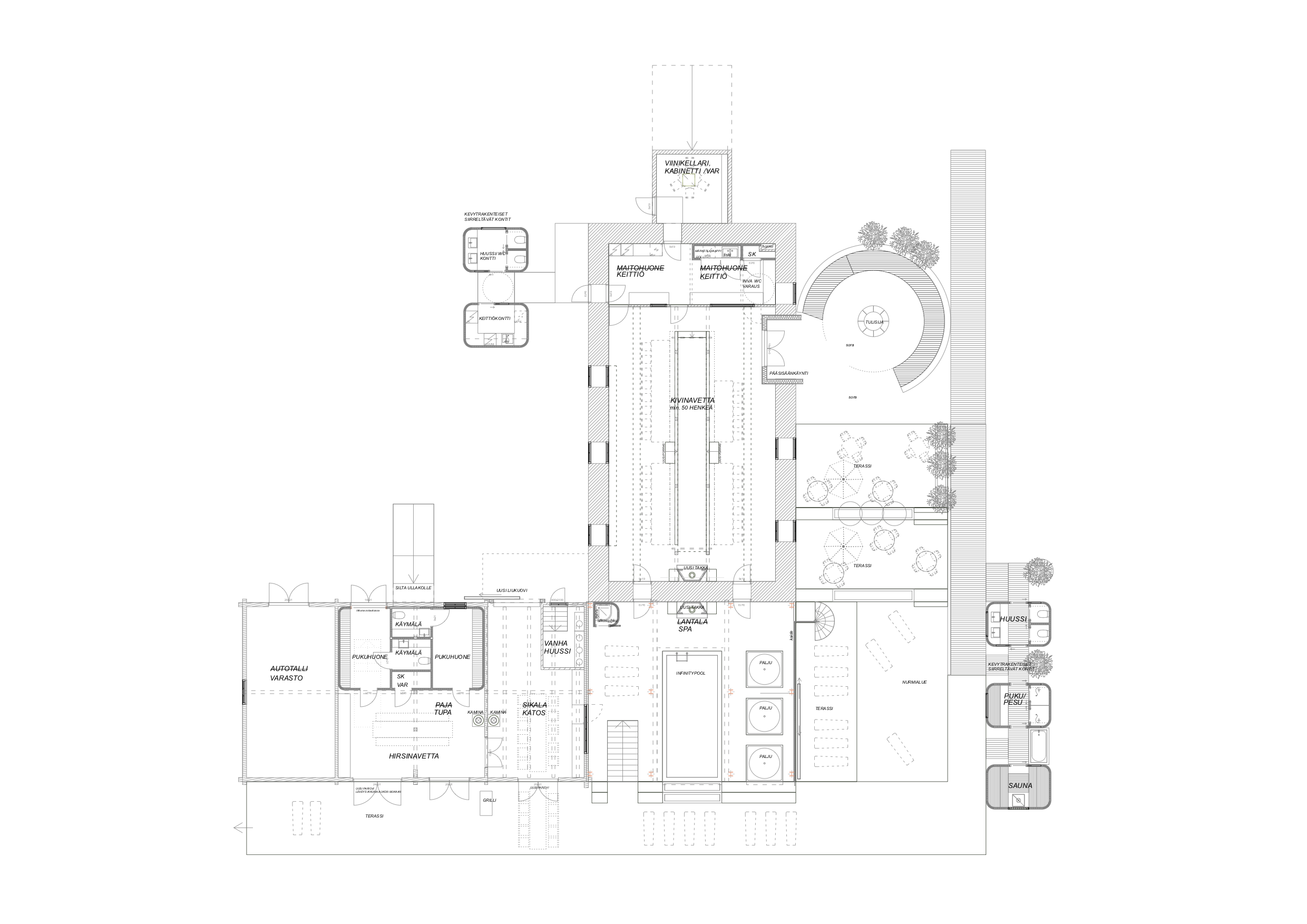
hum 526 m²
kem 558 m²

Kurjala maalaiskylpylä on Arkkitehtitoimisto Tilaston (Malin Moisio) ja NLUX® Studio (Marika Goman) yhteistyössä laatima toteutettavuussuunnitelma. Projekti keskittyy käyttämättömien maaseudun rakennusten uudelleenkäyttöön ja skaalautuvan matkailukonseptin luomiseen.

Kurjalan Navetat sijaitsevat Leppävirralla, Kankaarinteen tilalla. Konsepti hyödyntää olemassa olevia, käytöstä poistettuja maaseudun tiloja: suuri kivinavetta muutetaan rustiikkiseksi kokous- ja juhlatilaksi, vanha sikala ja paja toimivat pukuhuoneina ja oleskelutiloina, ja vanhan navetan korkea lantala muokataan maisemalliseksi maaseutukylpyläksi. Navetan vintille ja ympäröivään luontoon sijoitetaan kierrätysmateriaaleista valmistettuja siirreltäviä ”Pesäkoloja” majoituskäyttöön. Kevytrakenteisiin “Pesäkoloihin” sijoitetaan myös tarvittavat märkätilat kuten sauna, pesutila, käymälä ja keittiötilat.

Suunnitelmat keskittyvät majoitusratkaisuihin ja tukitoimintoihin, kuten ravintola-, sauna- ja virkistystiloihin, minimoiden investoinnit.

Tavoitteena on tarjota vaihtoehto perinteisille hotelleille, kylpylähankkeille, maatilamatkailulle ja lomamökkeilylle. Konsepti korostaa alueellista yhteistyötä ja on laajennettavissa laajemmaksi matkailukokonaisuudeksi.

Toteutettavuussuunnitelma sisältää liiketoiminnan kannattavuuslaskelmat, navetan käyttötarkoituksen ja toiminnallisuuden kartoituksen, kustannuslaskelmat sekä konseptisuunnitelmat ja havainnekuvat. Lisäksi suunnitelmaan sisältyy asiakkaan kanssa yhteistyössä työstetty luova visio kohteen brändi-identiteetistä ja tavoitteista.

 

”Kurjala Rural Spa is a feasibility study and architectural design project created in collaboration by Arkkitehtitoimisto Tilasto (Malin Moisio) and NLUX® Studio (Marika Goman). The project focuses on the reuse of unused rural buildings and the creation of a scalable tourism concept.”

 

 

Valokuvat: Malin Moisio, Sanna Nissinen

Arkkitehtisuunnitelmat: Malin Moisio/ Arkkitehtitoimisto Tilasto

3D Visualisointikuvat: Ineffable Tale Studio. https://www.ineffabletale.com/